Property in Arden Street, Coogee
Modern 2-bedroom Coogee apartment with balcony, designer finishes, parking, and steps from beachside cafés.
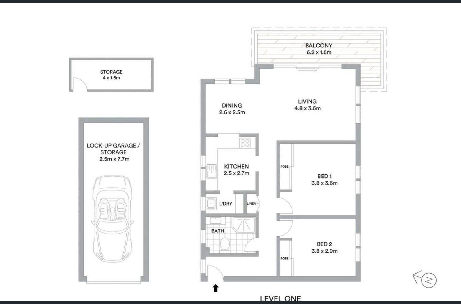
Experience relaxed coastal living in this beautifully designed 2-bedroom, 1-bathroom apartment with secure lock-up garage in the heart of Coogee. Perfectly positioned within a modern security building, this beachside residence captures a bright northerly aspect, blending comfort and style for modern living. The open-plan layout flows effortlessly onto a spacious balcony with new Merbau decking, ideal for entertaining or soaking up the coastal breeze. With a stylish kitchen, designer bathroom, and thoughtful details throughout, this home offers an easy-care lifestyle just moments from Coogee Beach, cafés, restaurants, and scenic coastal walks — perfect for professionals or first-home buyers.
Property Highlights
2 spacious bedrooms, both with built-in wardrobes
1 modern bathroom with designer fit-out and internal laundry
Stylish kitchen with stone benchtops, dishwasher, and ample storage
Bright open-plan living area flowing to large balcony
New Merbau decking ideal for alfresco relaxation
Air conditioning, heating, and plantation shutters
Secure lock-up garage plus additional storage
Located in a secure building in the heart of Coogee
Short stroll to the beach, cafés, restaurants, and coastal walks
